Product Center
產品概述:
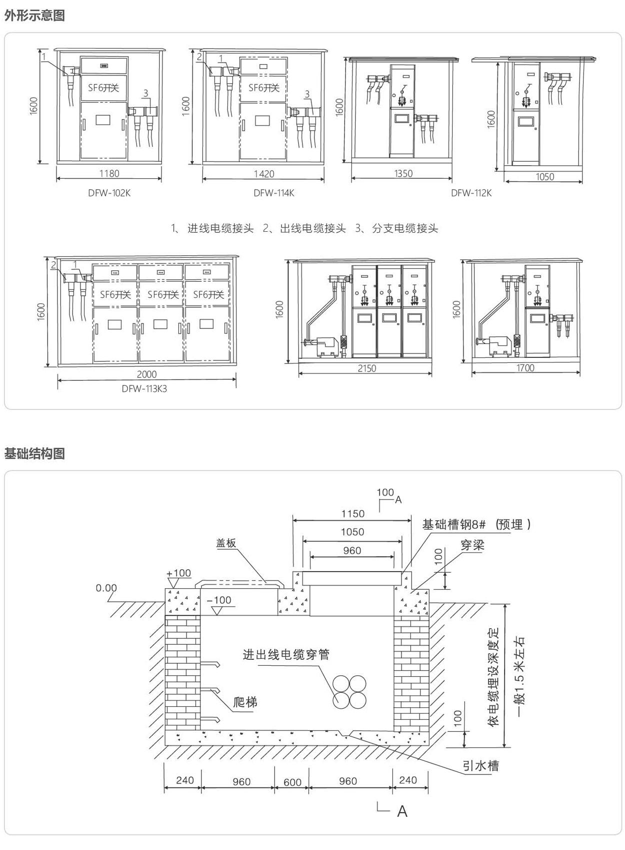
DFW帶開關電纜分支箱用于35kV、24kV、10kV電纜系統的節點連接,是電纜從開關柜出線后進行匯集與分接的主要電氣設備。分接箱的電纜接頭采用高等級絕緣的進口橡膠緊包覆絕緣、帶開關分接箱的開關均采用SF6絕緣負荷開關。
DFW帶開關電纜分支箱設計為戶外免維護運行,其防護等級達IP33.地下分接頭可耐洪水淹漫。該產品用于城市工業小區、住宅小區、商業中心、礦區和鋼鐵、汽車、石油、化工、水泥等大型企業以及其他場合的配電網,特別適合城市電網改造工程,可大大節省電氣設備和電纜投資,提高供電可靠性。
產品特點:
采用預制式帶電可觸摸硅橡膠電纜頭,全密封、全絕緣、免維護,可靠保證人身安全;
結構緊湊,外形小巧美觀,不銹鋼雙層箱體,使用壽命可達二十年以上;
在不影響主網運行的前提下,實現區域停電檢修,減小停電范圍;
可配一臺或多臺 SF6 負荷開關。接線方式靈活多樣,分支出線最多可達 8 回路;
可選避雷器、短路故障指示器、限流熔斷器等,滿足用戶各種要求;


